Проект планировки и проект межевания территории в западной части п.Сарапулка Березовского городского округа, между границей населенного пункта и ул.Западной – 2 (усл.)
Внимание!
Если Вы хотите подать предложение или замечание по выставленному на общественное обсуждение проекту- Проект планировки и проект межевания территории, расположенной в западной части п.Сарапулка Березовского муниципального округа, между границей населенного пункта и ул.Западной – 2 (усл.)
Вам необходимо совершить следующие действия:
1. Заполнить форму перейдя по следующей ссылке: Направить предложение
2. Прикрепить отсканированные копии документов (форматы указаны в форме), подтверждающих сведения, необходимые для регистрации Вас в качестве участника общественных обсуждений, установленных ст.5.1 Градостроительного кодекса Российской Федерации:
а) фамилия имя отчество, дата рождения, регистрация по месту жительства - для физических лиц;
б) наименование, основной государственный регистрационный номер, место нахождения и адрес - для юридических лиц;
в) участники общественных обсуждений, являющиеся правообладателями соответствующих земельных участков и (или) расположенных на них объектов капитального строительства и (или) помещений, являющихся частью указанных объектов капитального строительства, также представляют:
сведения соответственно о таких земельных участках, объектах капитального строительства, помещениях, являющихся частью указанных объектов капитального строительства, из Единого государственного реестра недвижимости и иные документы, устанавливающие или удостоверяющие их права на такие земельные участки, объекты капитального строительства, помещения, являющиеся частью указанных объектов капитального строительства.
г) заполненное и подписанное согласие на обработку персональных данных (прикрепить файл).
3. Отправить организатору общественных обсуждений путем нажатия кнопки «Отправить».
После направления Ваше предложение пройдет обработку, в случае соответствия/несоответствия представленных сведений требованиям законодательства к участникам общественных обсуждений, Вы будете зарегистрированы в качестве участника общественных обсуждений, либо не зарегистрированы, о чем Вам будет сообщено.
Файлы для скачивания
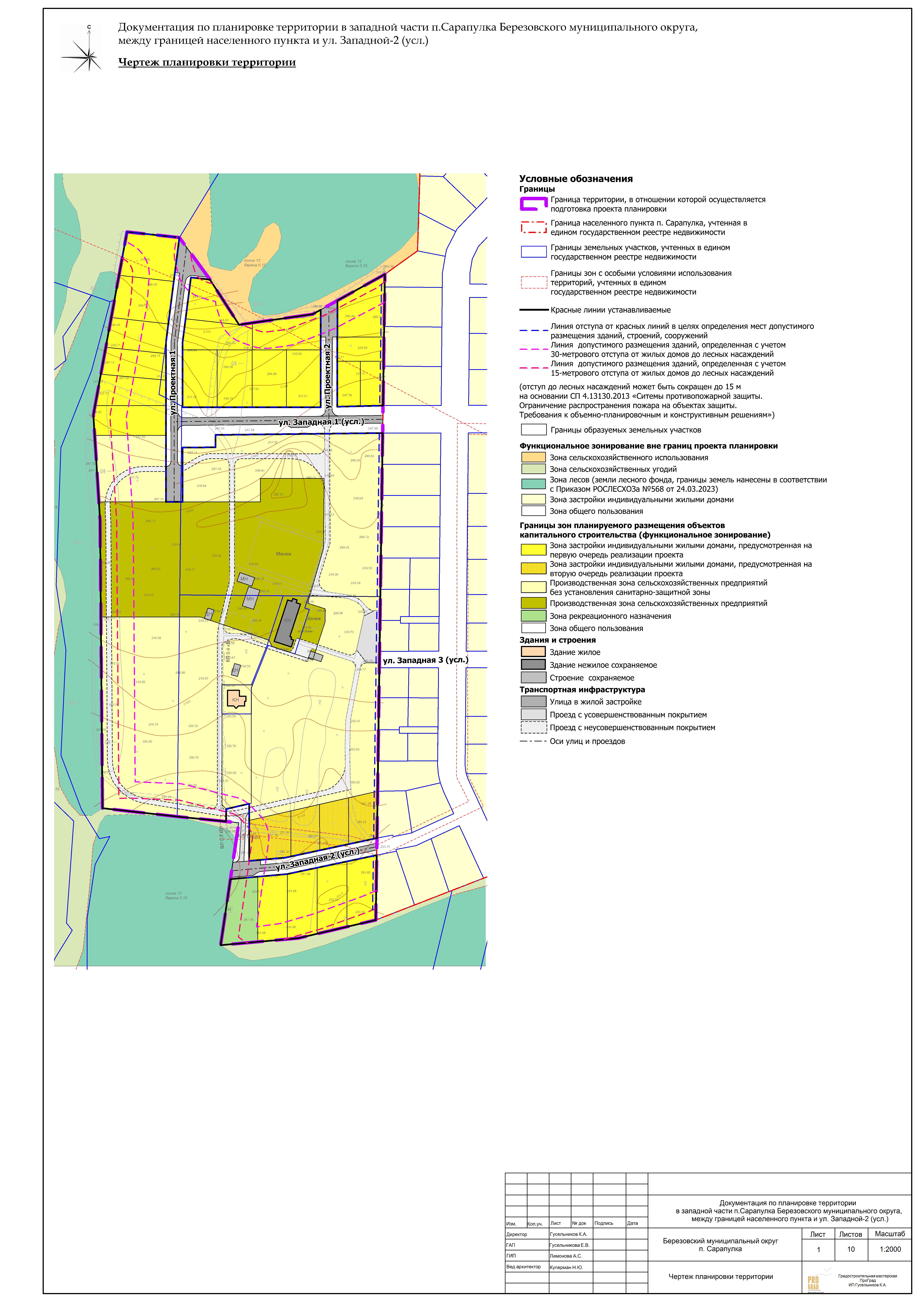
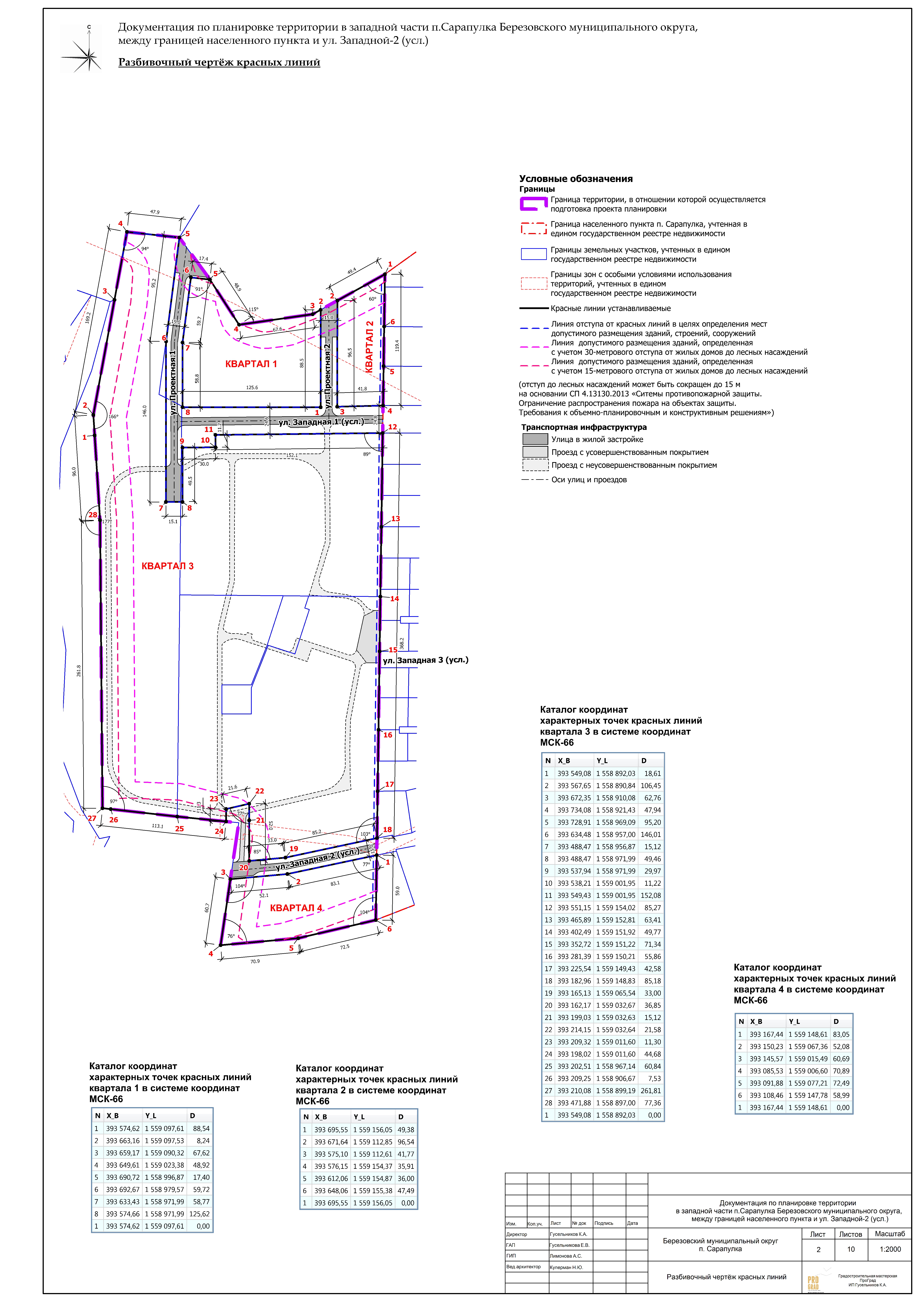
Постановление администрации БМО от 28.05.2025 №644 О назначении общественных обсуждений по проекту (pdf, 1.17 MB) Оповещение о начале общественных обсуждений по проекту планировки и проекту межевания территории, расположенной в западной части п.Са (doc, 39 KB) Согласие на обработку персональных данных субъектов персональных данных (doc, 33.5 KB) Том 1_Основная часть_ ППТ (doc, 669 KB) Том 3_ПМТ Текстовая часть (doc, 720.5 KB) 1_Чертеж_планировки_территории (jpg, 5.95 MB) 2_Разбивочный чертеж красных линий (jpg, 5.8 MB) Чертеж_межевания_территории (jpg, 5.86 MB) Заключение о результатах общественных обсуждений от 30.06.2025 №3078-03-10 (pdf, 911.56 KB)